Av Hege
NAMNFÖRSLAG. En del av de nya namnen lär kräva att man artikulerar väl om man uppger adressen i telefon.
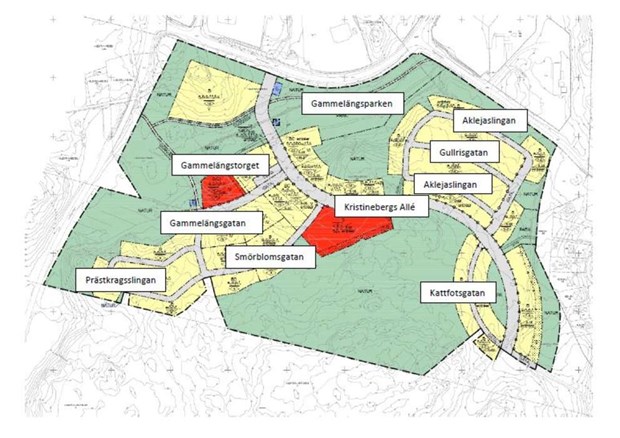
Foto: Skärmdump från bygghandling
Ska det heta Kristinebergs allé eller Kristinebergsvägen? Därom tvista de lärde på kommunen.
Klart är dock att områdets gator ska ha namn som påminner om blommor och historia.
Hur går det egentligen till när nya gator får namn i Vallentuna? Kommunen har en namnberedning som ger förslag, och sedan beslutar politikerna.
När det gäller det nya området Kristineberg som ska byggas finns namnförslag. Bland dem finns Aklejaslingan, Gullrisgatan, Mandelblomsgatan, Kattfotsgatan, Smörblomsgatan, Solvändegatan, Gammelängsgatan och Prästkragsslingan, plus Gammelängstorget och Gammelängsparken.
– Gammelängen är ett gammalt namn som finns i området, så vi ville lyfta det. De andra namnen är från växter som finns i Mälardalen och Roslagen, som skulle kunna finnas på ängen, berättar Isa Lindqvist, kommunantikvarie som är med i namnberedningen.
Allé eller väg - en huvudfråga
Huruvida namnen ska sluta med ”gatan” eller ”vägen” är inte klart. Beredningen ska ta hänsyn till att namnet inte ska ha funnits tidigare.
– Och det ska inte finnas liknande namn i närliggande bostadsområden.
Det är viktigt att namnen ska vara lätta att uttala.
– Vi kan inte ta vilka komplicerade ängsväxter som helst, namnen ska flyta på ett bra sätt och man ska inte snubbla över ordet.
Däremot diskuteras inte stavning så mycket. Beredningen följer stavningsregler, berättar en av medlemmarna.
En sak som dock varit uppe till diskussion är om huvudgatan ska heta Kristinebergs allé eller Kristinebergsvägen. Namnberedningen menar att det vore fel att döpa gatan till allé, eftersom ordet betyder ”en rak väg kantad av träd, som leder framåt till ett visst mål”, något som inte är fallet. Slutgiltigt beslut tas i höst.
